Projects
Traditional house TM
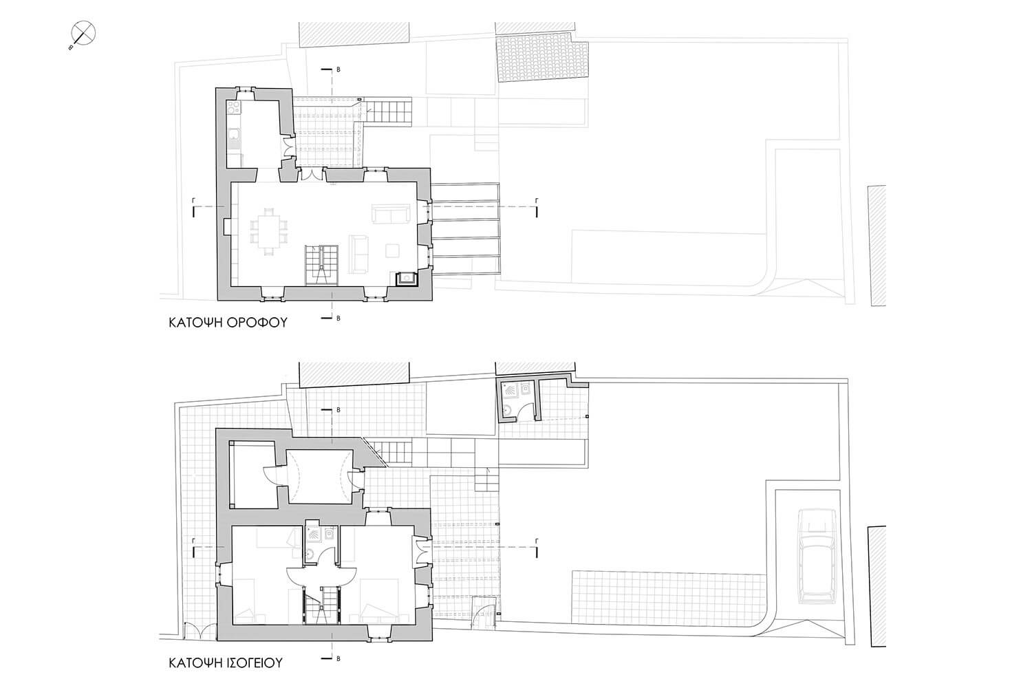
Aghios Nikolaos, Lakonia
Renovation 2010 - 2014
Renovation 2010 - 2014
The two-story building is located on a small plot of land inside the village. The external stone walls have been restored, while the timber truss roof has been rebuilt with the addition of an appropriate thermal insulation. The internal layout has been re-designed to suit the needs of the new owner.
Architectural planning / construction management: Stefano Tavlaridis | electrical planning: Yiannis Sxoinas
